JOKAN BLOG 施工 忍者ブログ

JOKAN BLOG

四国浄管グループのスタッフブログです。 施工例やスタッフの日々をつづっています。

   
カテゴリー「施工」の記事一覧

[PR]

×

[PR]上記の広告は3ヶ月以上新規記事投稿のないブログに表示されています。新しい記事を書く事で広告が消えます。

窓まわり外部塗装

窓の入替え工事に挑戦

サッシの下部は板を入れてキシラデコールで仕上げ

今回は水性です。



濡れ縁は取外し犬走りに直接貼ってみました。


仕上がりはこんな感じで


以前の窓からは随分変わりました



奥の方はまだかたずいていませんが・・




報告は窓マイスターの安宅でした。

拍手[1回]

PR

窓マイスター初仕事

窓マイスターの初めての仕事は・・

デュオPG 透明4-A10-透明4G 雨戸付

赤外線カメラ G100Lで撮影



センターの温度で14.2℃ですか・・

夜なので寿司一貫の灯りが窓から見えます



同じ時刻にソニー WX300で撮影すると、さすが、ソニーですね



同じ窓で2月22日の撮影







外気温が違うので、比較は難しいが今日は何となく暖かい

複層ガラスにすることで1~2度改善したようです。

報告は安宅でした。

拍手[1回]

真実の口

今日からトイレの改修工事です

段差のある和式トイレを洋式にします。まずは段差をなくしていきます。




電気工事で手を入れて電線を取ろうとしたとき



なんと・・抜けない・・・真実の口?

アン王女はいないのに?

演技ではなく・・本当に抜けなくなって・・・大変なことに気が付きました。

手を切るか・・壁を切るか

電線を隠す・・きれいな工事をするにはこんなこともあるんですネ

報告は安宅でした。

拍手[0回]

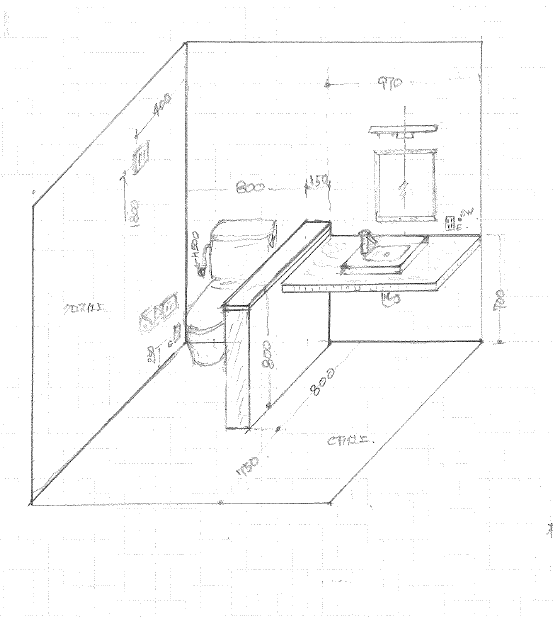
女子社員入社するかも

今回は南国市のM様邸にトイレを増設

息子さんが会社を設立したが、事務所にトイレが無い母屋のトイレを借りるしかない。

これでは女子社員採用も・・・そこでご相談を受けることに

この物置をトイレにできないか?



さっそくプラン作りに


ご依頼を受け施工開始

おじいさんが大切にしてた板を磨いてカウンターにします



アルミドアは白錆びがあるのでメタルプライマー+ラッカースプレーで塗装



コンパネで下地作り、床は24mmの合板で



完成はこんな感じに・・カウンターにはオイルを塗って仕上げました。

自動水栓も採用



便器はリクシル アメージュZ シャワートイレはCW-KB21

腰壁のトイレ側はトイレットペーパーなどのストック置き場に



鏡照明はLEDでシンプルなデザインを採用



お客様曰く想像していたより500倍イイネ!

これで女子社員採用できればいいですね。

担当は安宅でした。


拍手[0回]

社屋の外装工事

今回は社屋の外装に挑戦しました。

施工前の東側



施工前の南側



角材を250本ほど準備



塗装はキセラデコール



腐り易い部分はコーキングで・・・初めての挑戦



出来上がりは・・・撮影が良くなかったですがほぼ満足



外の光を十分取り込めるように開口

窓辺を花壇風に・・アイアンフェンスで



少しはイメージ変わりましたかネ・・

担当は安宅でした。

拍手[0回]

カレンダー

03 2026/04 05
S M T W T F S
1 2 3 4
5 6 7 8 9 10 11
12 13 14 15 16 17 18
19 20 21 22 23 24 25
26 27 28 29 30

最新コメント

[07/08 日本超人気のスーパーコピーブランド激安通販専門店]
[09/28 ScottLop]
[01/16 mazda]
[01/15 NONAME]
[01/14 mazda]

最新トラックバック

プロフィール

HN:
JOKANスタッフ
性別:
非公開

ブログ内検索

Copyright ©  -- JOKAN BLOG --  All Rights Reserved
Design by CriCri / Photo by Geralt / powered by NINJA TOOLS / 忍者ブログ / [PR]